
JNCC型橡膠減振器特性:
JNCC型橡膠減振器是由一頭配螺栓的鋼板,一頭配內絲的鋼板,中間圓柱形橡膠體組成,可壓縮和伸長,具有結 構簡單,安裝方便,耐油,耐酸堿,抗老化,耐溫等性能,廣泛應用于電子儀器,儀表,設備柜內,也可以用風 機,水泵,冷水機組等。由上下鋼板完全分離,不需另加附件即可減斷聲橋傳遞,是一種非常實用的減振器,尤 其適用于電子儀器儀表。
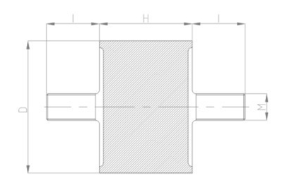
JNCC型橡膠減振器尺寸表:


Copyright ? 上海松夏減震器有限公司 版權所有
銷售電話:17317317121
公司地址:上海寶山區園康路255號1號樓A區三層
滬ICP備09066468號-24